« Πεδιλοδοκός Διάφορες περιπτώσεις θεμελίωσης »

 

Κοιτόστρωση

Η εκτεταμένη θεμελίωση (που συνήθως ονομάζεται κοιτόστρωση), είναι μια ενιαία θεμελίωση, που εκτείνεται σε όλη την επιφάνεια των υποστυλωμάτων που θεμελιώνονται.


Θεμελίωση με κοιτόστρωση
Θεμελίωση με κοιτόστρωση

Η λύση της κοιτόστρωσης σε θεμελίωση κτιρίου, εφαρμόζεται, κατά κανόνα, όταν το έδαφος δεν είναι πολύ ανθεκτικό.

Η λειτουργία της κοιτόστρωσης μοιάζει με τη λειτουργία μίας εσχάρας πεδιλοδοκών.


Μορφή κατανομής τάσεων εδάφους σε θεμελίωση με κοιτόστρωση
Μορφή κατανομής τάσεων εδάφους σε θεμελίωση με κοιτόστρωση

Οι τάσεις που δημιουργούνται στο έδαφος είναι ισχυρότερες στην περιοχή των υποστυλωμάτων και ασθενέστερες στις ενδιάμεσες περιοχές. Όταν υπάρχουν δοκοί ενίσχυσης, τότε οι τάσεις στο έδαφος έχουν μικρότερη απόκλιση μεταξύ των περιοχών των υποστυλωμάτων και των ενδιάμεσων περιοχών της κοιτόστρωσης.

Η κοιτόστρωση μπορεί να ανήκει σε μία από τις τέσσερεις γενικές κατηγορίες, (1) κοιτόστρωση με νευρώσεις, (2) κοιτόστρωση χωρίς νευρώσεις, (3) κοιτόστρωση με κρυφοδοκούς, (4) μικτή κοιτόστρωση.

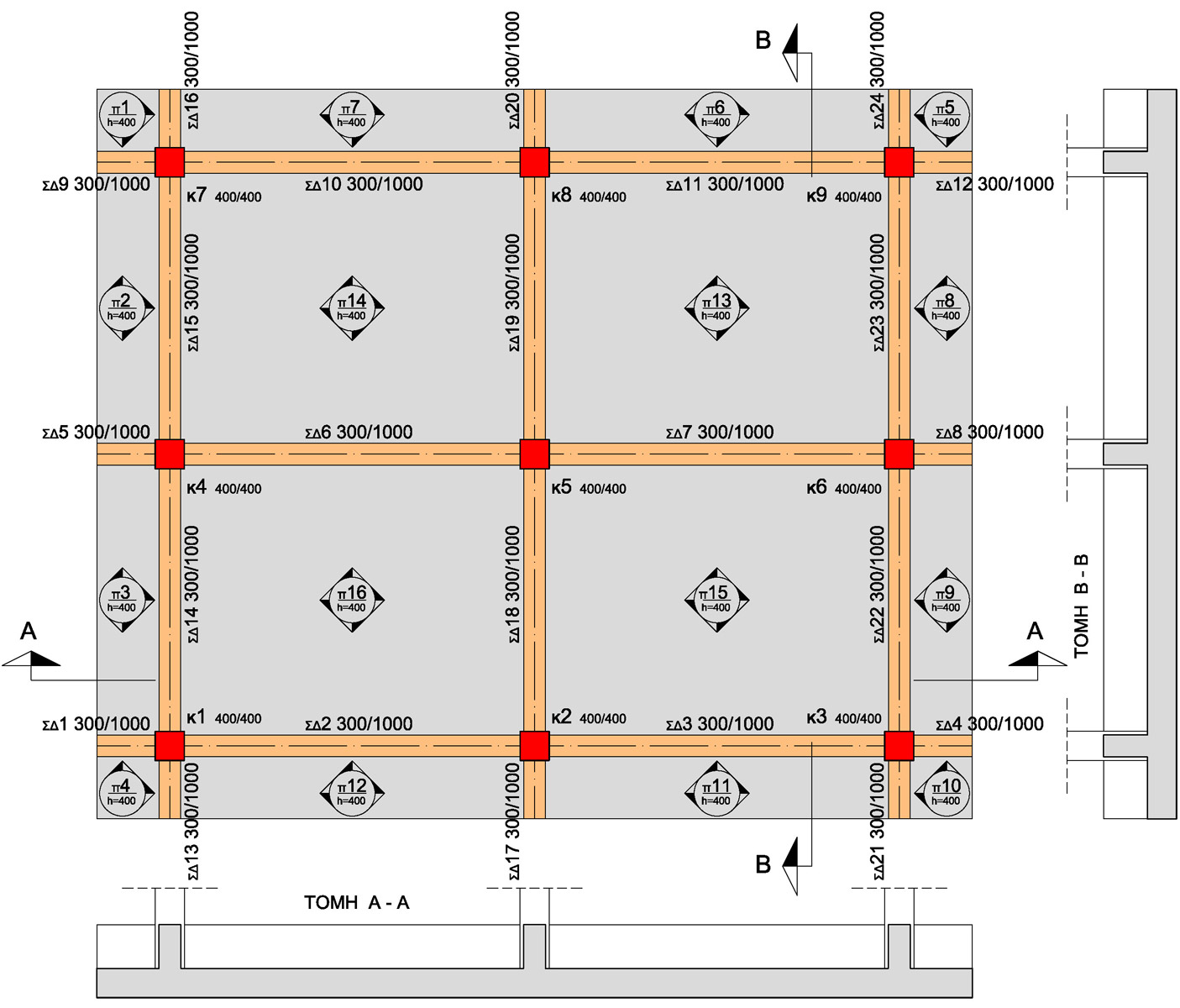
(1) Κοιτόστρωση με νευρώσεις

Στην κοιτόστρωση με νευρώσεις, εκτός από την ενιαία πλάκα θεμελίωσης υπάρχουν και δοκοί ως ενισχύσεις. Οι δοκοί δίνουν ακαμψία στη θεμελίωση και εκτός των άλλων, ομοιομορφίζουν και τις τάσεις του εδάφους.


Ενιαία πλάκα θεμελίωσης (κοιτόστρωση)με ενισχύσεις (δοκούς)
<μελέτη: FoundationRough10>
Ενιαία πλάκα θεμελίωσης (κοιτόστρωση)με ενισχύσεις (δοκούς)
<μελέτη: FoundationRough10>

Η κοιτόστρωση με δοκούς ενίσχυσης έχει σχετική δυσκολία τόσο στο καλούπωμα, όσο και στο σιδέρωμα.

Ο οπλισμός της κοιτόστρωσης με ενισχύσεις, είναι τριών κατηγοριών, όπως φαίνεται στην επόμενη εικόνα:

(α) όπλιση πλακών (κίτρινο χρώμα)

(β) όπλιση ελεύθερων παρυφών πλακών (μπλε χρώμα)

(γ) όπλιση δοκών (πράσινο χρώμα)

Τα σίδερα των κολονών είναι με γκρι χρώμα.


Οπλισμοί κοιτόστρωσης με νευρώσεις
Οπλισμοί κοιτόστρωσης με νευρώσεις

Οι πλάκες της θεμελίωσης σιδερώνονται με δύο πλέγματα, ένα στις κάτω ίνες και ένα στις πάνω και ακολουθεί τους κανόνες όπλισης των πλακών.

Οι δοκοί οπλίζονται με ισχυρούς συνδετήρες και ράβδους στις πάνω και κάτω ίνες και ακολουθούν τους κανόνες όπλισης των δοκών.

Οι ελεύθερες παρυφές των πλακών οπλίζονται με απλές φουρκέτες, ή με πλέγμα διαμορφωμένο σε φουρκέτα, ακολουθώντας τους κανόνες που ισχύουν και για τις πλάκες.

Παρατήρηση:

Μία ενίσχυση πεδιλοεσχάρας μπορεί, εκτός του να είναι δοκός, να είναι τοιχείο. Σε αυτή την περίπτωση, η όπλιση της πλάκας θεμελίωσης, είναι ανεξάρτητη της όπλισης του τοιχείου.

(2) Κοιτόστρωση χωρίς νευρώσεις

Η ενιαία πλάκα θεμελίωσης χωρίς ενισχύσεις είναι η απλούστερη μορφή θεμελίωσης, έχει πολύ εύκολο καλούπωμα και κατά κανόνα πολύ εύκολο σιδέρωμα.


Κοιτόστρωση χωρίς νευρώσεις
Κοιτόστρωση χωρίς νευρώσεις

Στην κοιτόστρωση χωρίς νευρώσεις, υπάρχει μόνο ενιαία πλάκα θεμελίωσης.

Οι πλάκες της θεμελίωσης σιδερώνονται με δύο πλέγματα, ένα στις κάτω ίνες και ένα στις πάνω. Στις περιοχές των αξόνων των υποστυλωμάτων, πολλές φορές, τοποθετούνται ισχυρότερες ή διπλές εσχάρες, επειδή κατά μήκος των αξόνων των υποστυλωμάτων εμφανίζονται και οι ισχυρότερες εντάσεις.

Οι ελεύθερες παρυφές των πλακών οπλίζονται με απλές φουρκέτες, ή με πλέγμα σε μορφή φουρκέτας.

Παρατηρήσεις:

1. Σε πρακτικό επίπεδο και κυρίως στην περίπτωση χρησιμοποίησης αναδιπλούμενου πλέγματος (μανδύα) σαν οπλισμό ελεύθερης παρυφής, οι φουρκέτες τοποθετούνται στη 2η φάση, όπως φαίνεται στο πρώτο σχήμα.

2. Η εναλλακτική λύση διαμόρφωσης των ελεύθερων παρυφών με άγκιστρα, στις απολήξεις των τερματικών ράβδων, πάνω και κάτω, όπως φαίνεται στο δεύτερο σχήμα, υστερεί της λύσης των φουρκετών, εκτός των άλλων, λόγω υψηλότερου κόστους διαμόρφωσης και κυρίως λόγω έλλειψης φυσικού περιμετρικού καβαλέτου.

Ο οπλισμός της κοιτόστρωσης χωρίς ενισχύσεις είναι τριών κατηγοριών όπως φαίνεται στην επόμενη εικόνα:

(α) όπλιση πλακών

(β) όπλιση ελεύθερων παρυφών πλακών

(γ) όπλιση διάτρησης (όταν απαιτείται) στην περιοχή κάποιων κολονών (με κόκκινο χρώμα)

Τα σίδερα των κολονών είναι με γκρι χρώμα.


Οπλισμοί κοιτόστρωσης χωρίς νευρώσεις
Οπλισμοί κοιτόστρωσης χωρίς νευρώσεις

Ο οπλισμός διάτρησης, όταν χρειάζεται, είναι όμοιος με αυτόν στα μεμονωμένα πέδιλα της παραγράφου 3.7.1, όπως φαίνεται και στην επόμενη εικόνα.


Κοιτόστρωση με οπλισμό διάτρησης
Κοιτόστρωση με οπλισμό διάτρησης

Όταν τα φορτία των υποστυλωμάτων είναι μεγάλα και το πάχος της πλάκας θεμελίωσης αναλογικά μικρό, απαιτείται η χρήση οπλισμού διάτρησης, που μπορεί να αποτελείται από κλωβούς συνδετήρων, όπως σ’ αυτό το παράδειγμα, ή από δέσμες από ανάποδες πάπιες, ή από ειδικά βιομηχανικά στοιχεία.

(3) κοιτόστρωση με κρυφοδοκούς

Στην κοιτόστρωση με κρυφοδοκούς, η πλάκα θεμελίωσης είναι ενιαία χωρίς ενισχύσεις, δηλαδή γεωμετρικά είναι το ίδιο απλή με την προηγούμενη περίπτωση.

Η κοιτόστρωση με κρυφοδοκούς έχει πολύ εύκολο καλούπωμα, αλλά δύσκολο σιδέρωμα.


Κοιτόστρωση με κρυφοδοκούς <μελέτη: FoundationRough20>
Κοιτόστρωση με κρυφοδοκούς <μελέτη: FoundationRough20>

Ο οπλισμός της κοιτόστρωσης με κρυφοδοκούς είναι ίδιος με τον οπλισμό της κοιτόστρωσης με ενισχύσεις, μόνο που το ύψος της δοκού - ενίσχυσης είναι ίδιο με το πάχος της πλάκας.


Οπλισμοί κοιτόστρωσης με κρυφοδοκούς
Οπλισμοί κοιτόστρωσης με κρυφοδοκούς

Οι συνδετήρες των κρυφοδοκών μπορεί να είναι δίτμητοι, τετράτμητοι (όπως εδώ), ή και με περισσότερες από 4 τμήσεις.

(4) μικτή κοιτόστρωση

Η μικτή κοιτόστρωση είναι μία εκτεταμένη θεμελίωση, που σε άλλα σημεία έχει ενισχύσεις και σε άλλα όχι. Οι ενισχύσεις μπορεί να είναι δοκοί ή τοιχεία.


Μικτή κοιτόστρωση <μελέτη: FoundationRough40>
Μικτή κοιτόστρωση <μελέτη: FoundationRough40>

Η συγκεκριμένη μικτή κοιτόστρωση έχει σημεία χωρίς ενισχύσεις, σημεία με ενισχύσεις δοκών και σημεία με ενισχύσεις τοιχείων.

Η μικτή κοιτόστρωση έχει δυσκολίες και στο καλούπωμα και στην όπλιση, αλλά πολλές φορές είναι αναπόφευκτη λύση π.χ. σε υπόγεια, όπου αναγκαστικά υπάρχουν τοιχεία.

 


« Πεδιλοδοκός Διάφορες περιπτώσεις θεμελίωσης »

Απόκτηση εξοπλισμού με Χρηματοδότηση 100% μέσω του ΕΣΠΑ

Π-SYSTEMS ΑΕ



Ευχαριστούμε για την υποστήριξη τις διακεκριμένες εταιρίες:


ΧΑΤΖΗΔΑΒΙΤΙΔΗΣ ΑΕ ΧΑΤΖΗΔΑΒΙΤΙΔΗΣ ΑΕ

Π-SYSTEMS ΑΕ Π-SYSTEMS ΑΕ