« Όπλιση τοιχείου Ματίσεις κατακόρυφων ράβδων »

 

Τρόποι αγκύρωσης των οριζόντιων ράβδων κορμού τοιχείου

(α) Αγκύρωση επί ισχυρού ακραίου υποστυλώματος

Όταν το ακραίο υποστύλωμα είναι ισχυρό και η αγκύρωση των οριζόντιων ράβδων (διανομών) γίνεται στον πυρήνα της κολόνας, τότε η αγκύρωση μπορεί να είναι ευθύγραμμη.

(β) Αγκύρωση επί ισχνού ακραίου υποστυλώματος

Όταν το ακραίο υποστύλωμα είναι ισχνό, δηλαδή δεν επαρκεί το μήκος του για ευθύγραμμη αγκύρωση, υποχρεωτικά χρησιμοποιείται αγκύρωση με άγκιστρο.

(γ) Ευθύγραμμη αγκύρωση στον πυρήνα, όταν το ακραίο υποστύλωμα είναι ισχυρό και η παρειά του υποστυλώματος συγγραμμική με την πλευρά του τοιχείου:

(i) περίπτωση:

Το μειονέκτημα εδώ είναι η ανάγκη καμπύλωσης των οριζόντιων ράβδων στα σημεία παράκαμψης. Για ράβδους Ø8 και Ø10 αυτό μπορεί να γίνει και επί τόπου με το «κλειδάκι» κατά τη διάρκεια της συναρμολόγησης, για μεγαλύτερες όμως διαμέτρους, πρέπει να γίνεται υποχρεωτικά στον κουρμπαδόρο.

Σ’ αυτή την περίπτωση ο σιγμοειδής οπλισμός πρέπει να πιάνει τις οριζόντιες ράβδους δίπλα στο σημείο συμβολής τους με τις κατακόρυφες.

(ii) περίπτωση:

Σ’ αυτή την περίπτωση της ευθύγραμμης αγκύρωσης χωρίς παράκαμψη, προκύπτει μεγαλύτερη επικάλυψη του οπλισμού για τις οριζόντιες ράβδους, οι οποίες λειτουργούν κυρίως σε διάτμηση, οπότε δεν δημιουργείται ιδιαίτερο πρόβλημα. Για τις κατακόρυφες επίσης ράβδους, ο μοχλοβραχίονας μικραίνει, αλλά μόνο κατά περίπου 10 mm, οπότε και πάλι δεν υπάρχει πρακτικά πρόβλημα.

Τελικά, η χρήση της ευθύγραμμης ράβδου με αγκύρωση στο εσωτερικό του ακραίου υποστυλώματος συνιστάται, επειδή, πέραν των άλλων πλεονεκτημάτων, εξασφαλίζει και την αναγκαία επικάλυψη των αγκίστρων των S όταν αγκαλιάζουν ταυτόχρονα την οριζόντια και την κατακόρυφη ράβδο διανομής.

(δ) Αγκύρωση με αγκάλιασμα της ακραίας κολόνας και τελείωμα με άγκιστρο.

Είτε η κολόνα είναι ισχυρή, είτε όχι, στις οριζόντιες ράβδους πρέπει να δημιουργείται άγκιστρο που να μπαίνει στο εσωτερικό του περισφιγμένου υποστυλώματος.

1η περίπτωση: επάρκεια ευθύγραμμου μήκους αγκύρωσης:

Η αγκύρωση μπορεί να γίνει με άγκιστρο 90º στο σώμα του ακραίου υποστυλώματος

2η περίπτωση: ανεπάρκεια ευθύγραμμου μήκους αγκύρωσης:

Όταν η διάσταση του ακραίου υποστυλώματος δεν είναι επαρκής για ευθύγραμμη αγκύρωση, χρησιμοποιούνται άγκιστρα 45º (135º). Αυτά, είτε προκατασκευάζονται πλήρως, για να είναι εφικτή η δημιουργία της αγκύρωσης των 45º και στα δύο άκρα, είτε συναρμολογούνται επί τόπου με οριζόντιες ράβδους, απολήξεων 45º και 90º, οι οποίες όμως θα τοποθετούνται εναλλάξ καθ’ ύψος.

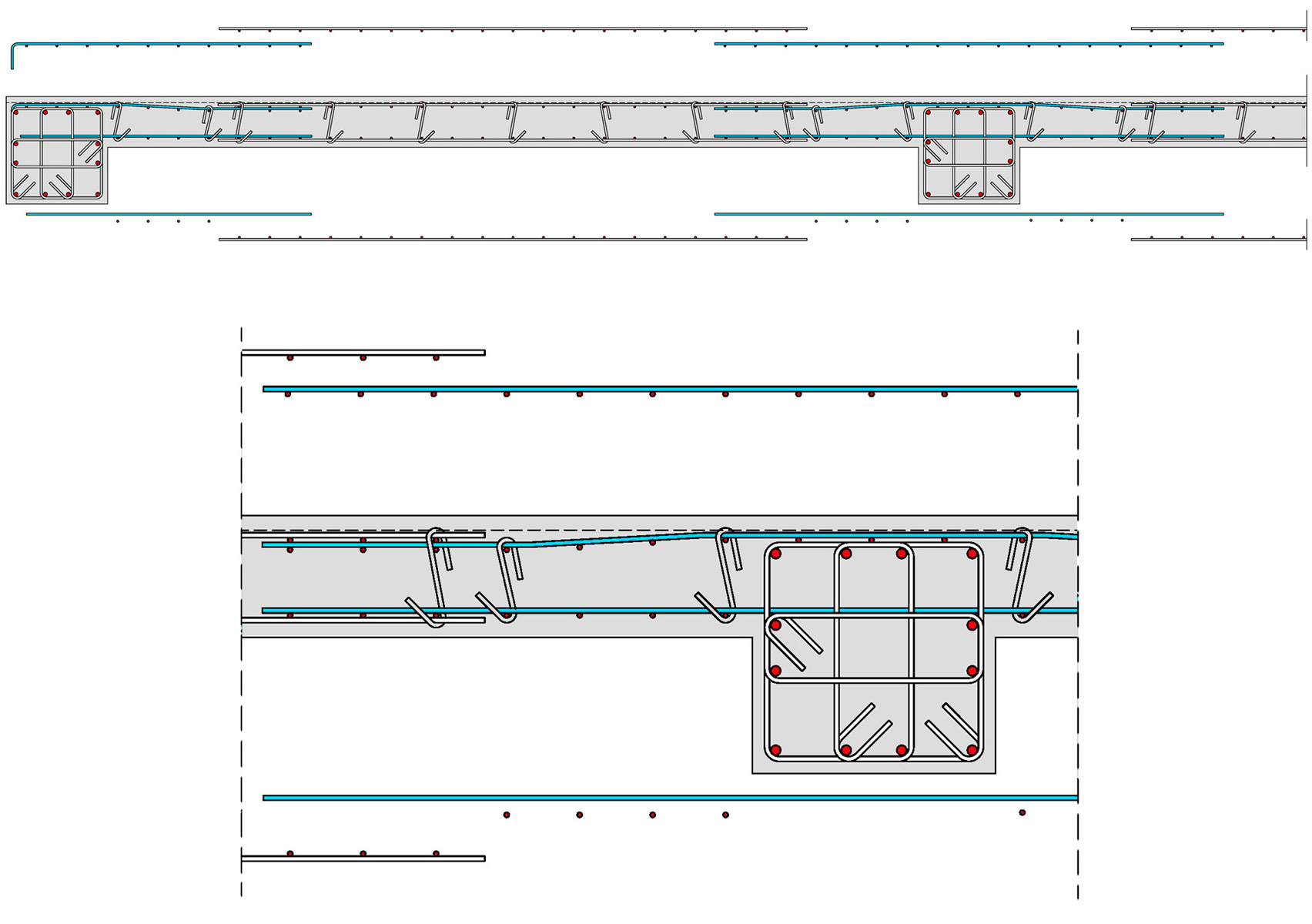
(ε) Αγκύρωση συνεχών τοιχείων πλήρωσης υπογείων

Στα συνεχή τοιχεία πλήρωσης, η δυσκολία όπλισης των διανομών εντοπίζεται στην περιοχή των υποστυλωμάτων, γι’ αυτό εκεί μπορούν να τοποθετούνται ευθύγραμμες διανομές σχετικά μικρού μήκους, οι οποίες θα ματίζονται με τις μεγάλες ενδιάμεσες διανομές και θα συναρμολογούνται επί αυτών οι κατακόρυφες διανομές.

Οι οριζόντιες και κατακόρυφες διανομές είναι πολύ παραγωγικό να είναι σε μορφή έτοιμων πλεγμάτων. Σ’ αυτή την περίπτωση ακολουθούνται οι πρακτικές που περιγράφονται στη συνέ-χεια:

Σε πρώτη φάση τοποθετούνται οι οριζόντιες «κοντές» ράβδοι (αναμονές) εκατέρωθεν του υποστυλώματος και στη συνέχεια τα πλέγματα, όπως φαίνονται στη διπλανή σελίδα.

Παρατηρήσεις:

Αν το βιομηχανικό πλέγμα δεν ταιριάζει με τις διαστάσεις του ελεύθερου ανοίγματος του τοιχείου, οι κοντές διανομές της περιοχής των υποστυλωμάτων μπορούν να είναι μεγαλύτερες. Σ’ αυτή την περίπτωση, οι κατακόρυφες διανομές μεταξύ του τέλους του πλέγματος και του υποστυλώ-ματος τοποθετούνται χειρωνακτικά εκ των υστέρων.


Σε περίπτωση που η θέση των ράβδων των κολονών δημιουργεί δυσκολία στην τοποθέτηση των κοντών διανομών, μπορεί να γίνεται παράκαμψη στην άκρη τους.
Σε περίπτωση που η θέση των ράβδων των κολονών δημιουργεί δυσκολία στην τοποθέτηση των κοντών διανομών, μπορεί να γίνεται παράκαμψη στην άκρη τους.

? κοντές οριζόντιες διανομές κολόνας (αναμονές)
? βιομηχανικό πλέγμα ? πρόσθετες κατακόρυφες διανομές
? κοντές οριζόντιες διανομές κολόνας (αναμονές)
? βιομηχανικό πλέγμα ? πρόσθετες κατακόρυφες διανομές

Όπλιση “συνεχών τοιχείων” υπογείου με ράβδους
Όπλιση “συνεχών τοιχείων” υπογείου με ράβδους

Όπλιση “συνεχών τοιχείων” υπογείου με βιομηχανικά πλέγματα
Όπλιση “συνεχών τοιχείων” υπογείου με βιομηχανικά πλέγματα

Στην περίμετρο του κτιρίου, στους ορόφους πάνω από το έδαφος, υπάρχει συνήθως αντισεισμικός αρμός (30 έως 100 mm), ή θερμομόνωση (30 έως 50 mm), τα οποία δεν χρειάζονται στο υπόγειο. Μπορεί όμως το πάχος τους να αξιοποιηθεί στα τοιχεία πλήρωσης, για την εξασφάλιση της επικάλυψης και την τοποθέτηση των πλεγμάτων των διανομών εκτός οπλισμού κολονών, όπως φαίνεται στο επόμενο σχήμα.

 


« Όπλιση τοιχείου Ματίσεις κατακόρυφων ράβδων »

Απόκτηση εξοπλισμού με Χρηματοδότηση 100% μέσω του ΕΣΠΑ

Π-SYSTEMS ΑΕ



Ευχαριστούμε για την υποστήριξη τις διακεκριμένες εταιρίες:


ΧΑΤΖΗΔΑΒΙΤΙΔΗΣ ΑΕ ΧΑΤΖΗΔΑΒΙΤΙΔΗΣ ΑΕ

Π-SYSTEMS ΑΕ Π-SYSTEMS ΑΕ