|
« Αμφιέρειστη πλάκα
Αμφιέρειστη πλάκα με πρόβολο »
|
Αν στο προηγούμενο παράδειγμα προστεθούν δύο δοκοί στις θέσεις των ελεύθερων παρυφών, τότε η πλάκα Π1 γίνεται τετραέρειστη.
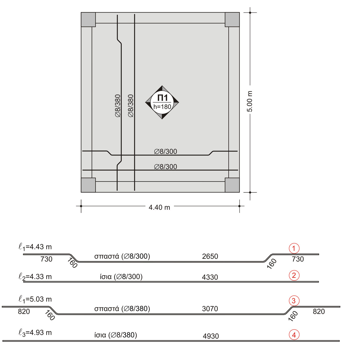
Η τετραέρειστη πλάκα Π1, πατάει στις τέσσερεις δοκούς <μελέτη: slabs20> Η τετραέρειστη πλάκα Π1, πατάει στις τέσσερεις δοκούς <μελέτη: slabs20>
Η λειτουργία της τετραέρειστης πλάκας είναι παρόμοια με τη λειτουργία της αμφιέρειστης, μόνο που η λειτουργία αυτής είναι και προς τις δύο διευθύνσεις.
Οι κανόνες όπλισης είναι επίσης παρόμοιοι και προς τις δύο διευθύνσεις.
Λειτουργία τετραέρειστης πλάκας Λειτουργία τετραέρειστης πλάκας
Ο ξυλότυπος σιδερά της τετραέρειστης πλάκας Ο ξυλότυπος σιδερά της τετραέρειστης πλάκας
Η τετραέρειστη πλάκα, από άποψη λειτουργίας, ασφάλειας και οικονομικότητας είναι ασύγκριτα καλύτερη από την ισοδύναμη αμφιέρειστη .
|
« Αμφιέρειστη πλάκα
Αμφιέρειστη πλάκα με πρόβολο »
|
|